kaiyun官方网app下载app 深圳公安消防支队田寮消防站设计:狭长的“集中式”建筑 / 深大建筑设计院“钟中+钟波涛”工作室
深圳市公安消防支队田寮消防站设计:狭长的“集中式”建筑 / 深圳大学建筑设计院“中忠+钟伯涛”工作室
深圳市公安消防支队田寮消防站设计:狭长的“集中式”建筑 / 深圳大学建筑设计院“中忠+钟伯涛”工作室
编辑:张诺亚(实习生)|校对:李伯超 | 2022.08.18 12:09

整体外观©田腾飞
设计单位 深圳大学建筑设计研究院有限公司“中忠+钟伯涛”工作室(Z&Z STUDIO)
项目地点 广东省深圳市
竣工日期:2020年7月
建筑面积5039.5平方米
田寮消防站是设计团队新建的第一个“集中式”消防站。该项目场地狭长,土地十分紧张。如何合理布局消防站的功能,妥善解决与周边建筑拥挤、紧张的关系,成为主要的设计挑战。
01 项目概况
田寮消防站位于深圳市光明区南光高速以东、南根路以北。用地东侧为摩比科技大厦,西侧为规划道路环光路,北侧为规划道路南田路,南侧为南根路。
项目用地面积4099.16平方米,总建筑面积5039.50平方米,其中地上建筑面积3985平方米,包括三层高的商务楼和七层高的培训塔。地下室建筑面积1054.50平方米。容积率0.97。

位置图 ©Z&Z STUDIO

基地周边 ©Z&Z STUDIO
田寮消防局是一级消防局。它不仅要容纳八辆消防车,还设有消防训练场地、篮球场和跑道。空间非常局促。同时周边也存在诸多限制,包括东侧高层建筑对场地的压迫、西侧高速公路的噪音干扰、高速公路对消防车流量的影响等。 ,这对消防站的设计提出了严峻的挑战。 。

夜景鸟瞰图 ©田腾飞

夜晚的建筑外观 ©田腾飞
02 消防局研究
深圳市消防局标准化设计研究会
2014年10月,深圳市建设工务厅、深圳市公安消防总队和深圳市城市设计促进中心联合举办了深圳市2014年“消防站标准化设计研究会”暨建筑设计竞赛。通过一系列设计调研、专题研讨会、公众活动等,重新思考消防站的功能,逐步形成消防站“标准化”建设模式,满足深圳消防站快速设计和建设的需要将来。

深圳市消防局标准化设计研究会 © 深圳市城市设计促进中心
在同一套“标准化设计共识”的指导下,各单位参与并进一步提出了自己的解决方案,以满足未来深圳快速消防站设计的建设需求,最终推出了深圳市快速消防站标准化设计书面文件。新型消防站——《深圳市消防站标准化与个性化设计导则》和《消防站标准化研究图集》逐步形成了消防站的标准建设模式,对柱网、开间、竖向分布、立面材料、 ETC。

《深圳消防局标准化设计研究》成果:设计导则及研究图集©Z&Z STUDIO
深圳消防局设计趋势
标准化:重点关注消防站的主要功能,包括消防车库、备用室、地下室、训练塔和标牌。由于这部分设计内容与消防站业务密切相关,采用标准化设计模块有助于实现规模经济、外观统一、标准统一。同时有利于提高消防效率,方便车辆调配,缩短设计周期,降低成本,方便后期使用和维护,提高消防培训效率,便于统一管理。
个性化:与传统消防站不同,新型消防站的设计目的是随着消防站建设工程的加紧,高效、快速地建设合理、完整的消防站。新型消防站既有共性,也有个性。 “个性化”是比“标准化”设计更人性化、更合理的设计。
综合:由于深圳高密度城市带来的消防压力,土地资源紧缺导致建设用地减少。此外,社会分工细化,单一功能建筑减少,多功能建筑增多,“消防站综合体”日益成为趋势。

消防站功能关系图 ©Z&Z STUDIO
03 撤退分析
由于土地短缺,深圳市的退步要求无法完全满足。经过多次沟通协调,最终取得较为合理的让步:用地东侧13.5米,南侧6.05米,西侧2.3米。米,北侧退缩1.8米,使设计团队能够在紧张的土地上科学合理地布局消防站和体育场馆。

背线分析©Z&Z STUDIO
04 城市关系
本项目用地狭长,周边限制较多。西、南、北三面均紧邻道路,东侧被高层建筑占据,对场地造成较大压力。因此,东侧尽可能后退13.5米,与摩比科技大楼保持最大距离,减轻消防站的压力。训练场北侧布置为空地,为周边建筑留下“呼吸”空间。

俯视图 © 田腾飞
05 总体布局
本项目建筑造型符合南北方向狭长的场地,布置在南侧。西侧设有消防车库出口和出口广场,供消防人员离开和返回车辆。西南侧是主要的人行入口,供消防员和游客进入。北侧布置消防训练场、跑道、篮球场,东南侧次入口为生活后勤入口。由于场地狭小,除了车站、训练场馆和铺装外云开·全站APP登录入口,可供绿化的空间很少。因此,本项目绿化率仅为7%。
竖向设计使基地与环光路基本平齐,地势平坦,内部高架道路高于市政道路标高,有效防止雨水回流。整体布局满足退缩、日照、消防等方面的规范要求。

总平面图 ©Z&Z STUDIO
06 功能分布
由于这个项目的用地非常局促,就像在蜗牛壳里建一个道场一样。因此,采取集中布局,合理布置车站、出口广场和训练场地kaiyun体育登录网页入口,妥善解决与周边环境的冲突。尽管用地紧张,设计团队仍尽力利用车站、训练塔、绿化和围墙形成内庭院,为消防员营造安静的生活和训练环境。麻雀虽小,五脏俱全。
本项目功能布局采用“分区清晰、流线独立”的原则。西侧临街部署消防车,一楼布置8辆消防车。访客入口位于场地西南角,开放区域位于一层及夹层。消防车库面向环光路。一楼为门厅、餐厅等功能。二楼为后备室和办公室。西侧设有盥洗室、淋浴间。三楼为商务用房和辅助用房。此外云开·全站apply体育官方平台,屋顶布置果园,建筑多处设置空中花园,丰富消防员的生活。

功能分布 ©Z&Z STUDIO

整体外观©田腾飞
07 交通组织
本项目在运输组织上采用“集约化”设计。主要人行入口设置在场地西南侧,靠近道路,消防队员和游客通过该入口进入消防站。消防车垂直部署在面向街道的西侧,大大提高了消防效率。平时参观时,开放区域集中在一楼和夹层。您可以通过夹层的参观走廊参观车库。此次参观与消防训练是独立的,互不干扰,完全不影响消防员的日常训练和出勤。

行人交通分析图 ©Z&Z STUDIO

车流量分析图 ©Z&Z STUDIO
08 建筑风格
本项目造型设计以《深圳市新建消防站标准化设计研究》为基础,加入个性化元素。采用现代简约的设计手法,利用材质对比、体量穿插、折板等,以密集、紧凑的形式清晰地表达了建筑功能与形式的对应关系。同时,立面采用开洞、局部架空、空中花园、垂直格栅、深凹窗等手法,以适应岭南炎热多雨的气候。建筑整体风格既稳重端庄,又灵活通透,在新建消防站标准化设计的共同特征中体现了田寮站的个性。


局部细节和训练塔 ©田腾飞
设计图纸▽

底层平面图 ©Z&Z STUDIO

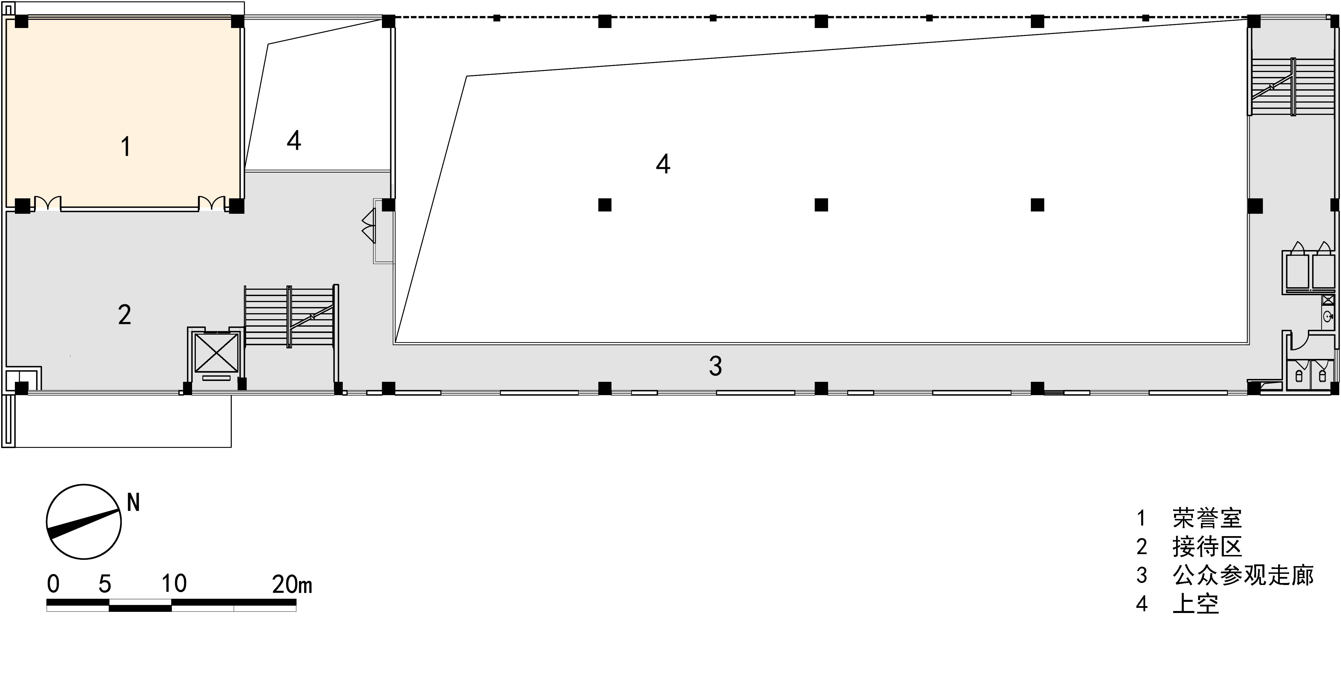
一楼夹层平面图 ©Z&Z STUDIO

二层平面图 ©Z&Z STUDIO

三层平面图 ©Z&Z STUDIO

剖面图 ©Z&Z STUDIO
完整的项目信息
项目名称:深圳市公安消防支队田寮消防站建设项目
项目类型:消防建筑
项目地点:深圳市光明区南光高速东侧、南根路北侧
设计单位:深圳大学建筑设计研究院有限公司“中忠+钟伯涛”工作室(Z&Z STUDIO)
总建筑师:钟钟
设计团队完整名单:钟忠、钟波涛、王敏、钟海寰
业主单位:深圳市光明区建设工务局
建成状态:已建成
设计时间:2016年11月
竣工时间:2020年7月
土地面积:4099.16平方米
建筑面积:5039.50平方米
总图:刘牧
结构:周杰、勇勇
给排水:谢蓉、曹吉英
电气:陈爱莲、何晓明
暖通空调:韩国花园,叶智恩
成本:唐锦
摄影:田腾飞
本文由深圳大学建筑设计院“钟钟+钟伯涛”工作室授权有方发表。欢迎您转发。禁止转载有方编辑版本。
鲁ICP备18019460号-4
我要评论